Újépítésű lakások Székesfehérvár kedvelt családi házas övezetében – válasszon most, amíg még elérhetők!
Székesfehérvár egyik legkedveltebb, nyugodt családi övezetében hatlakásos társasházak épülnek több ütemben. Az alapozás elkészült, a falazások most indulnak – ez az a pillanat, amikor Ön biztosíthatja új otthonát a legkedvezőbb feltételekkel. A lakások babaváró támogatással, Start hitellel vagy háromszázalékos kedvezményes konstrukcióval is igénybe vehetők.
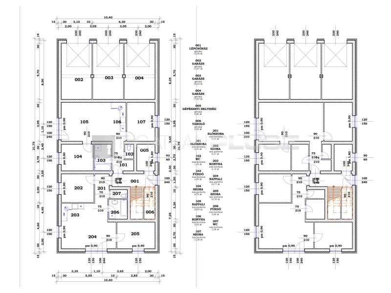
A házakban összesen hat lakás található, három garázzsal, a többi lakó számára pedig udvari beállások biztosítják a parkolást. A lakások kínálata sokszínű: választhat kertkapcsolatos vagy kert nélküli, teraszos vagy terasz nélküli, valamint penthouse stílusú lakások közül. Többféle négyzetméter, többféle elrendezés – itt Ön az első, aki dönthet. Legyen Ön az, aki már most kiválasztja a legjobb lakást a projekt indulásakor!
Az árak négyzetméterenként rendkívül kedvezőek, érdemes időben cselekedni, hogy a legjobb választási lehetőségek az Öné legyenek.
Ez a projekt egy megbízható, referenciákkal rendelkező beruházó cégtől valósul meg, amely már számos hasonló társasházat sikeresen átadott, és a helyszínen is megtekinthetőek korábbi munkáik – bárkivel beszélhet a referenciák hitelességéről.
Az épület rugalmas lakáselrendezést kínál: a földszinten két lakás, az első emeleten három lakás, a második emeleten pedig egy tágas, akár 112 m²-es lakás, vagy két kisebb egység (57 és 55 m²) alakítható ki, a vevő igénye szerint. A lakások mérete 48 m²-től egészen 112 m²-ig terjed, így mindenki megtalálhatja a számára ideális otthont.
Az árak a lakások adottságaihoz igazodnak, a kisebb, kényelmes otthonoktól a tágas, nagyobb lakásokig 49,9 millió és 64,9 millió forint között mozognak. A garázs megvásárlása esetén 7,99 millió forint, a szabad parkoló beálló 2,49 millió forint áron elérhető, így mindenki megtalálhatja a számára legkényelmesebb megoldást.
Épület és alapmunkák:
Az épület sávalapra készül, a zsaluzatot vasalással erősítve, majd kibetonozva, biztosítva ezzel a stabil és tartós szerkezetet. A falazat Poroterm 30 N +F falazóelemekből készül, a lakások közötti főfalak hanggátló kialakítással biztosítják a nyugodt, csendes környezetet. Az áthidalók LEIER előregyártott kerámia áthidalók, a válaszfalak 10 cm széles LEIER 10 N + F elemekből épülnek.
A földszinti és az első emelet feletti födémek vasbeton monolit födémek, míg a második emelet feletti záró részen fa födém kerül kialakításra.
Tető és homlokzat:
A tető kontyolt nyeregtető, fedése beton cseréppel, páraáteresztő fóliával. Az ereszrendszer antracit színű, alumíniumból készült, harmonizálva a modern külsővel.
A nyílászárók egyedi gyártásúak, kívül antracit fóliával ellátottak, 5 kamrás, fokozottan hőszigetelt üvegezéssel. A garázsajtó fokozottan hőszigetelt, szekcionált, elektromos motorral működik, két darab távirányítóval.
A homlokzat 15 cm-es hőszigetelést kapott, a ház teljes lábazati része vízzáró, műgyanta alapú lábazati vakolattal lesz ellátva, biztosítva a hosszú távú védelmet és esztétikus külsőt.
Villamos hálózat:
Minden lakás 32 A-es megtáplítást kap érintésvédelmi relével. A villamos szerelvények alapesetben Schneider Sedna, de a vevő 80.000 Ft-ig választhat más típusokat. Az ár lámpatesteket nem tartalmaz.
Helyiségenkénti szerelés:
Szobák: 4 db dugóaljzat, 1 db koax/TV kiállás
Nappali: 5 db dugóaljzat, 1 db koax/TV kiállás
Konyha: 10 db dugóaljzat a megbeszélés szerint
Fürdő: megbeszélés szerint
Terasz: 1 db kültéri dugóaljzat, 1 db lámpakiállás
Garázs: 1 db dugóaljzat + 1 db a garázsmotornak
Helyiségenként 1 db mennyezeti lámpakiállás, nappaliban 2 db (nappali és étkező)
Bejáratnál és terasznál 1-1 db kültéri lámpakiállás bentről kapcsolható
A kivitelező vállalja a riasztó rendszer alapkábelezését, a kaputelefon teljes villamos alapszerelését, valamint egy kerti elosztódoboz kialakítását. A ház megfelelő helyiségeiben a villanytűzhely, mosogatógép és mosógép előkészítését is biztosítja a kivitelező.
Modern, kényelmes és személyre szabható belső kialakítás
Minden lakásban padlófűtés kerül kialakításra a nappaliban, szobákban, konyhában, étkezőben, fürdőben és közlekedőkben, a fűtést Panasonic Aquarea hőszivattyú biztosítja, digitális szabályozóval, H tarifás villanyórával, a fürdőben elektromos törölközőszárítóval.
A burkolatok teljesen választhatóak:
Hideg burkolatok: csúszásmentes teraszgránit (6000 Ft/m²), garázs gres (4000 Ft/m²), belső hidegburkolatok (fürdő, konyha, közlekedő) 8000 Ft/m²-ig, a megrendelő igénye szerint.
Meleg burkolatok: nappali és szobák laminált parkettával készülnek 6000 Ft/m²-ig, választható színben.
A vakolt belső falak 3 réteg glettelés után 2 réteg festést kapnak, a színek választhatóak, maximum 60.000 Ft értékig.
A beltéri ajtók kilinccsel szerelve, 70.000 Ft-ig színben és típusban választhatók.
Minden megadott ár a burkolatokra és alapanyagokra vonatkozik, az ettől eltérő extra igények a vevőt terhelik.
Teljesen kiépített közművek és gondozott telek
Az ingatlan minden közműre (víz, villany, csatorna) rákötve kerül, a telek teljes közműbevezetését a kivitelező biztosítja. Az építkezés végén a kivitelező vállalja a teljes tereprendezést, 10 cm termőföld terítését, 1 db kerti csap kiállást, valamint a kocsibeálló térkő burkolatát.
A telek körül színezett drótkerítés és utcafronti kerítés kerül kialakításra, a kaputelefon és a TV/internet alapkábelezésével együtt.
Az ingatlan konyhabútort és egyéb bútorokat nem tartalmaz, az ár ÁFÁ-val együtt értendő. A részletek a tervdokumentáció és a megrendelő-kivitelező egyeztetés szerint alakíthatók.
A lakások 2026 végére készülnek el, addig a kivitelezés teljes ütemében folyamatosan zajlanak a munkálatok, biztosítva a magas minőségű, minden részletében kidolgozott otthont.













