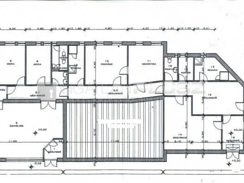
Egy társasház földszintjén eladó egy 300 m2, 8-10 helyiséggel rendelkezõ iroda. Utcáról két bejáraton közelíthetõ meg. Saját kazánnal rendelkezik. Összközmûves. Alkalmas banki tevékenységre ( páncélterme van), orvosi rendelõnek, Irodának. Lakások is kialakíthatóak.
Eladási ár: 250.000.-Ft+Áfa



